About this Holiday House
Kick back and relax in this new country home.
Watch the sunrise over the Mountains.
Feed chickens and gets some eggs for your breakfast.
Go for a surf at any of the Awesome surf breaks close by.
Come back to a relaxing spa watching the bird life fly into the pond next door.
Watch the sunset over the horizon as the cows and sheep eat grass close by.
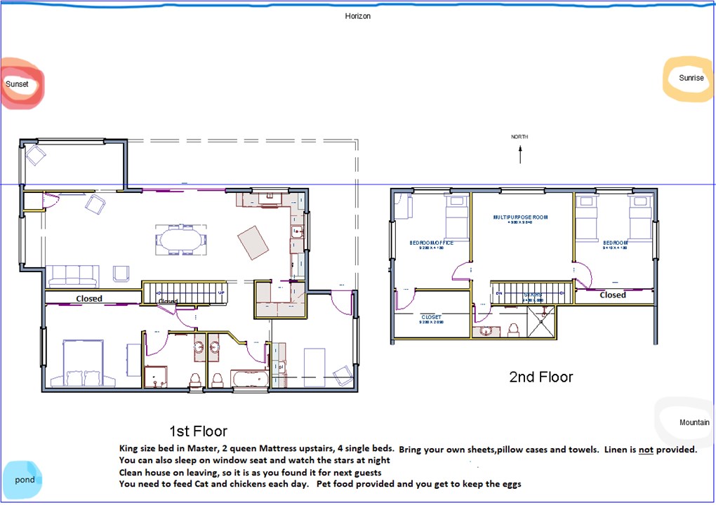
Things to note.
Linen is not provided. Bring your own sheets, towels and pillow cases.
Please clean house on leaving.
No dogs sorry




















































